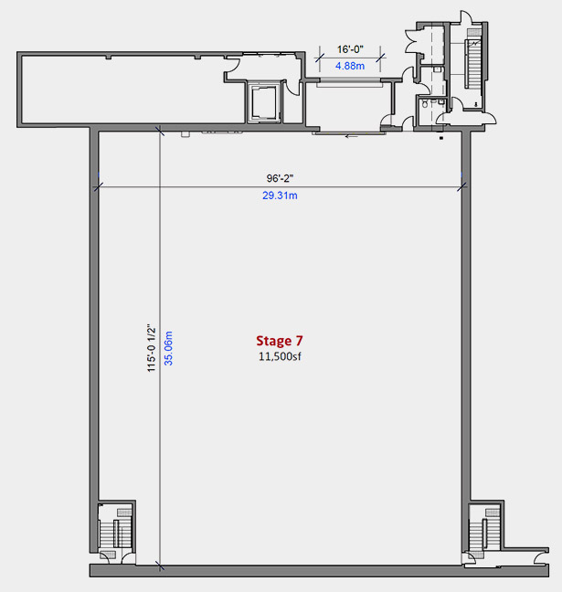
11,500 sq. ft. soundproof and climate controlled studio.
NOTES
CLICK AND VIEW FULL IMAGES
BRIDGE STUDIOS ARE PROUD PARTNERS OF